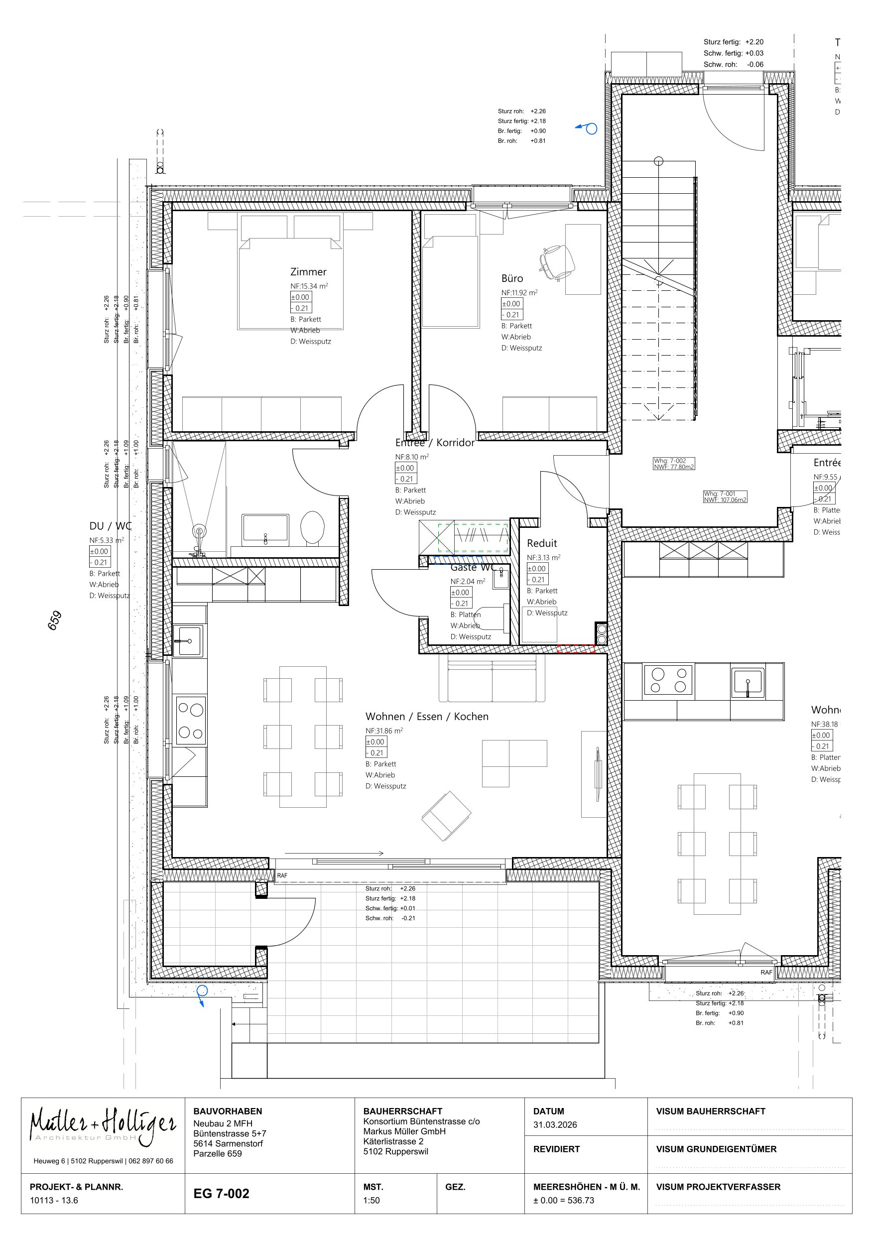
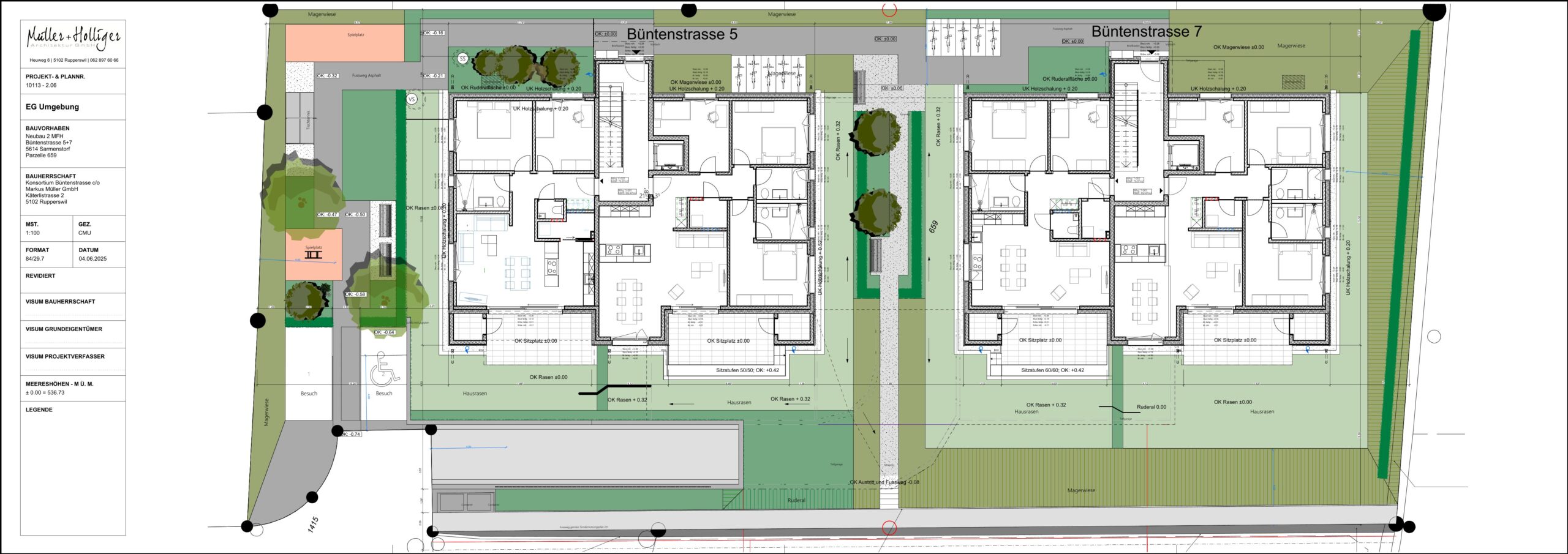
2 MFH Büntenstrasse Sarmenstorf – 3.5 Zimmer Eigentumswohnung
Bezug
01.07.2026
Einheiten
4 x 3.5 Zimmer Eigentumswohnungen
4 x 4.5 Zimmer Eigentumswohnungen
Noch verfügbar
1 x 3.5 Zimmer Eigentumswohnungen im EG, Verkaufspreis 695’000.00 Fr.
Bauherr
Konsortium Büntenstrasse, c/o Markus Müller GmbH, 5102 Rupperswil
